> Heiligenhaus
Erschließung „B-Plan 50 - 2“
in Heiligenhaus
Planung:
von Juli 2006 bis Oktober 2007
Ausführung Kreisverkehr:
von Februar 2008 bis November 2008
Ausführung Erschließung:
von November 2008 bis dato
Investitionsvolumen Kreisverkehr:
ca. 650.000 Euro
 |
|
Erbrachte Leistungen:
- Planung Umplanung des Kreuzungsbereiches auf der B227 im Bereich der Zufahrt des Erschließungsgebietes B-Plan 50 unter Einbindung eines Kreisverkehrs und Umgestaltung der Harzstraße
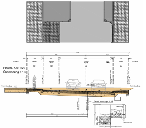
- Straßenplanung Mischverkehrsfläche ca. 12.100 m²
- Straßenplanung Separationsprinzip ca. 5.700 m²
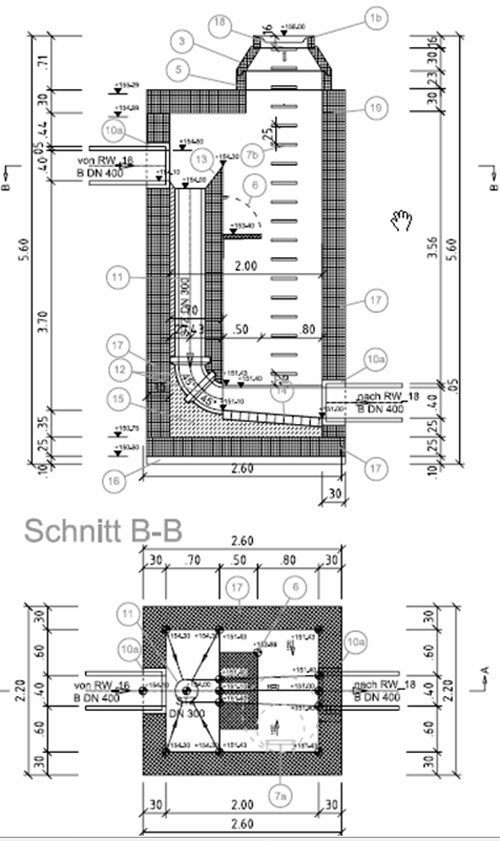
- Kanalplanung Regenwasser ca. 2.000 m
- Kanalplanung Schmutzwasser ca. 2.100 m
Stauraumkanal DN 1000
- Versorgungsträgerkoordination
- Beleuchtungsplanung
- Bauablaufplanung & Bauleitung
- Baugebietsgröße: ca. 7,4 ha mit gepl. 130 WE, inkl. eines Nahversorgungszentrums
|
atelier stadt & haus Gesellschaft für Ingenieur- und Straßenplanung - Hallostraße 30 - 45141 Essen
